‹ › ×
    • facebook
    • pinterest
    • linkedin
    • instagram
    brand-logo PROJETS
    • AGENCE & CONTACT
    • TARIFS & MISSIONS

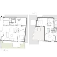
    Surélévation d'un appartement de 95 m² + 55 m² / Puteaux

    PROGRAMME : surélévation & rénovation

    LOCALISATION : Puteaux [92800]

    SURFACE : 95 m² + 55 m² habitables

    BUDGET : 210 000 € HT  travaux

    MAITRE D'OUVRAGE : Privé 

    MAITRE D'OEUVRE : LM2

    DATE : 2015-2016

    STATUT : projet livré en novembre 2016

    MISSION : MOE complète

    L’appartement à rez-de-chaussée, situé en coeur d’ilôt, ne comprenait que deux chambres. Trop juste pour une famille avec deux enfants. L’ajout de deux chambres et un espace séjour dans l’étage en surélévation a été l’occasion de repenser l’éclairage naturel et l’aménagement de l’étage existant, ainsi que le confort thermique de l’ensemble de l’appartement. La création d’une grande verrière en toiture a permis de faire entrer la lumière naturelle au coeur de l’étage existant à RDC.

    photographies : Cyrille Lallement

    © 2019 - Matesco Architecture - EURL d'Architecture - 26 rue de Terre Neuve 75020 Paris - 09 72 62 24 72 - bonjour@matesco.archi